SC LIMA
Diseño de edificio de viviendas dúplex
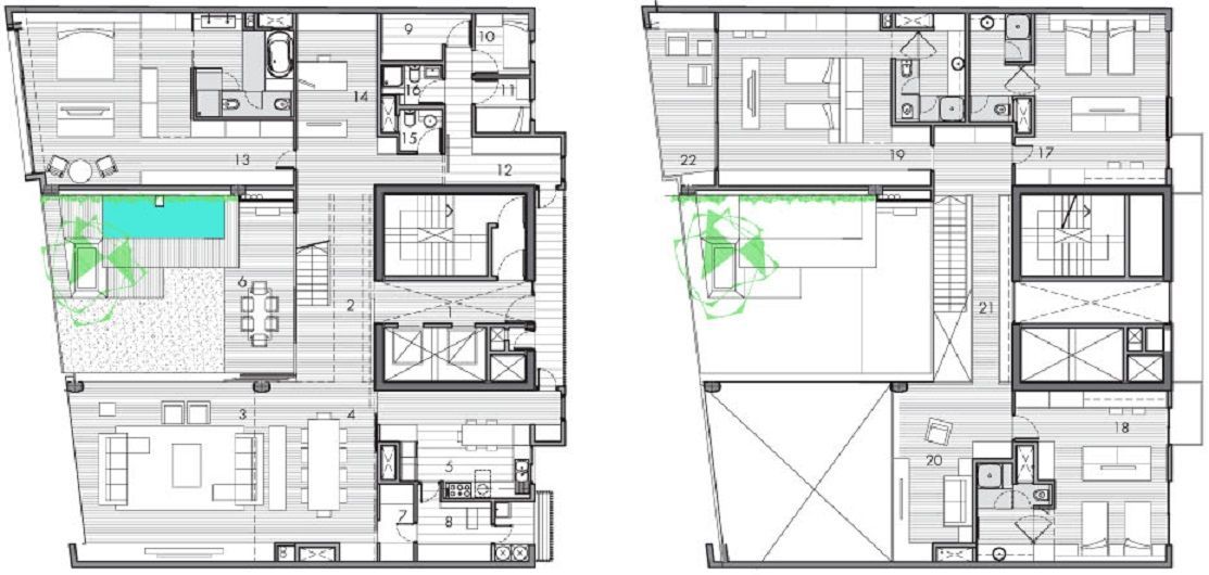
La misión, diseñar un conjunto de viviendas dúplex de 500m², con una vista privilegiada sobre la ciudad.
El conjunto se compone en base a 3 tipos de "cajas", definidas según su uso interior: zona de día (en acabado blanco metálico), dormitorios (en acabado gris oscuro de piedra), terraza (en acabado predominantemente de madera).









