AR937
Diseño de edificio de viviendas en Lima
Cumplir con los exigentes requerimientos del promotor y de la normativa urbanística vigente es un desafío que ciertamente obliga a multiplicar esfuerzos para no perder de vista que se trata de hacer arquitectura de valor y no sólo una pobre distribución técnica de los viviendas.
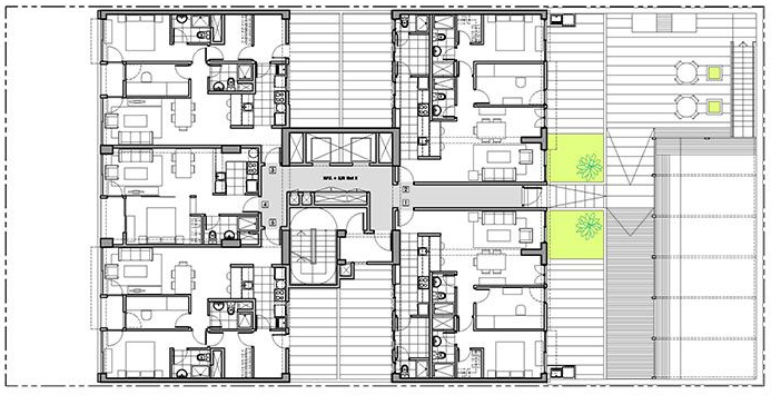
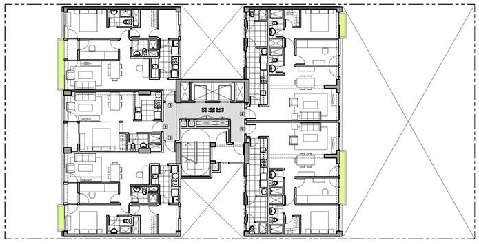
La misión principal, diseñar viviendas de 1 y 2 dormitorios, versátiles, compactas, con vistas privilegiadas sobre la ciudad, con riqueza espacial interior, fluidez en sus recorridos y desde luego, funcionalidad efectivamente resuelta.
El resultado, un éxito comercial.
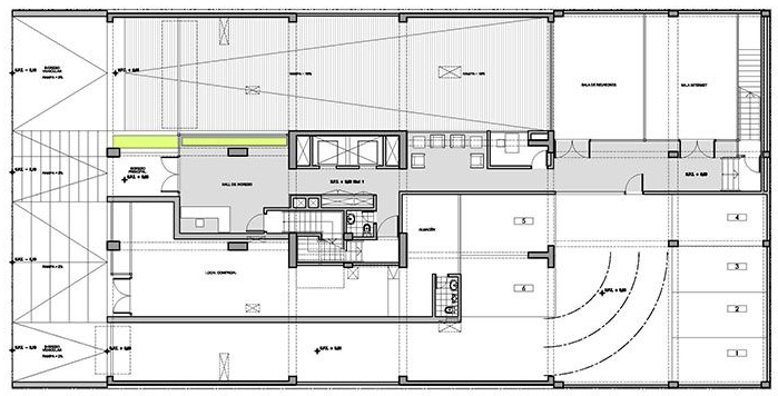
95 viviendas + local comercial + áreas comunes
80 plazas de aparcamiento
20 plantas + 4 sótanos















